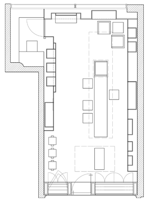
Frey Wille Letiště
2011
realizace interiéru obchodu se šperky

činnost místního architekta
ve spolupráci s M_nairz Architects, Austria