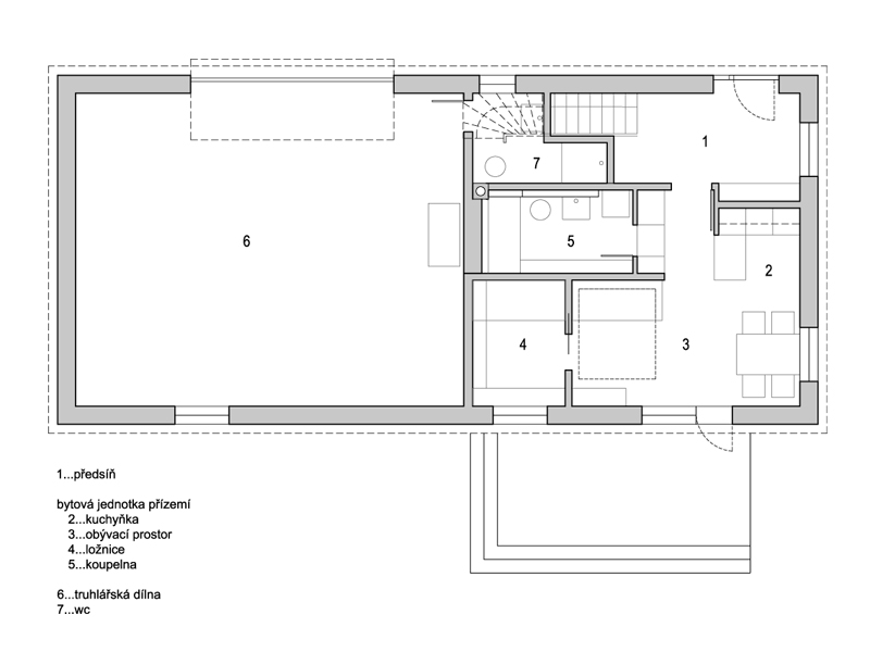
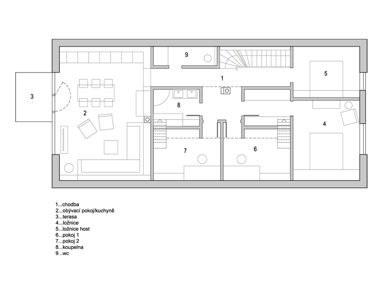
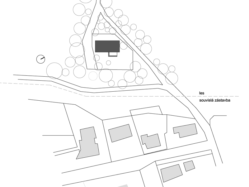
RD Hájenka konverze lesní hájenky na vícegenerační rodinný dům s truhlářskou dílnou 2010-současnost projekt, realizace