RD Kunice
2014
projekt rodinného domu
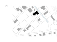
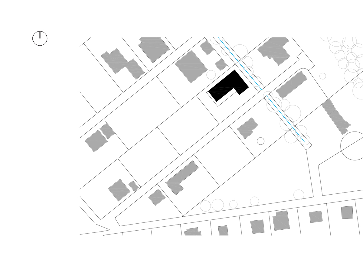
Vzhledem k velmi různorodému a nejednotnému charakteru okolní zástavby bylo možné využít výjimku z prostorové regulace a neřídit se striktně jejími požadavky. Dům je navržen jako přízemní stavba s plochou střechou a velkorysým vnitřním prostorem, který se zdánlivě rozlévá po celém po celém stavebním pozemku a nenuceně se v něm prostřednictvím bohatého prosklení a systému zakousnutých atrií prolíná vnitřní a venkovní prostředí. Ke zvolenému konceptu řešení do značné míry vedla i ne přímo ideální orientace pozemku s obslužnou komunikací vedoucí podél obytné jihovýchodní strany pozemku.
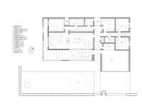
Půdorysně má stavba tvar písmene L a je umístěna co nejblíže SV a SZ hranici pozemku, aby byla maximálně uvolněna osluněná JV a JZ část zahrady. V obytné části je dům vybaven krytým ochozem, který vytvoří soukromou přechodovou zónu mezi interiérem a exteriérem, a který může být v závislosti na pozici předsazených posuvných stínících panelů vnímán více jako součást interiéru nebo exteriéru. V neposlední řadě funguje ochoz jako druhý plán fasády zajištující soukromí obyvatel i při použití velkoplošného prosklení bez přímé nutnosti použití další clonící a stínící techniky. Kvůli zachování dobré hladiny denní osvětlenosti je střecha hlubokého ochozu před jihovýchodní fasádou je navržena ze skleněných panelů, před jihozápadní fasádou se uvažuje zastřešení plné.
Fasáda domu je navržena z modřínových latí, které přirozeným stárnutím na povětrnosti časem získají stříbřitou barvu. Horizontální směr kladení zvýrazňuje celkovou horizontalitu jednopodlažního domu a dále podporuje koncept prolínání domu s okolím. Velký důraz je v návrhu kladen i na pojednání venkovních zpevněných ploch, které jsou díky orientaci domu a obslužné komunikaci v přímé vazbě na obytnou terasu. Navrženy jsou betonové kletované desky v kombinaci se žulovou dlažbou a zatravněnými plochami.
V budoucnu se uvažuje s vybudování finské sauny jako samostatného zahradního objektu v jihozápadním rohu pozemku.







