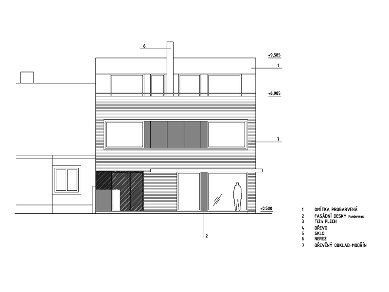
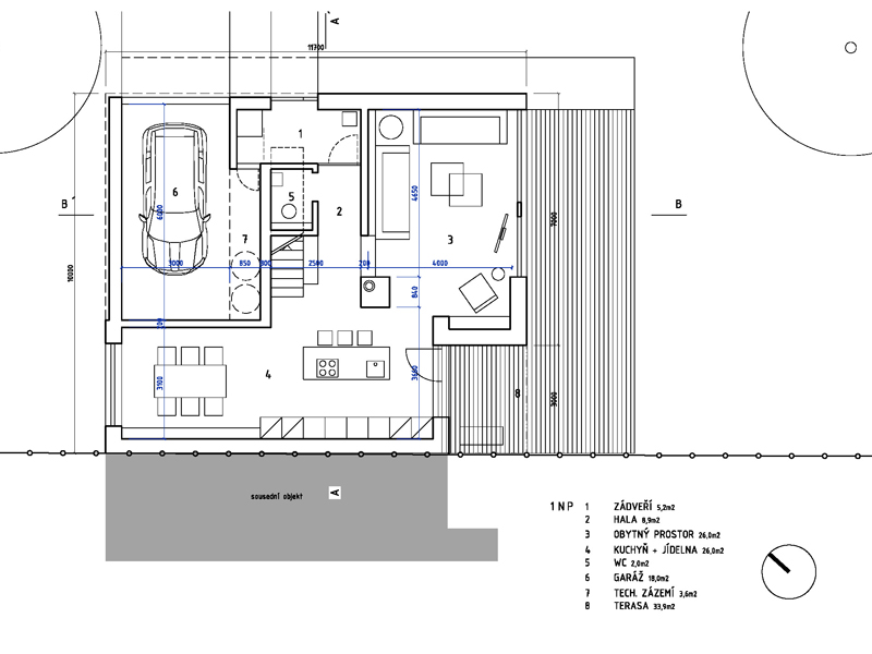
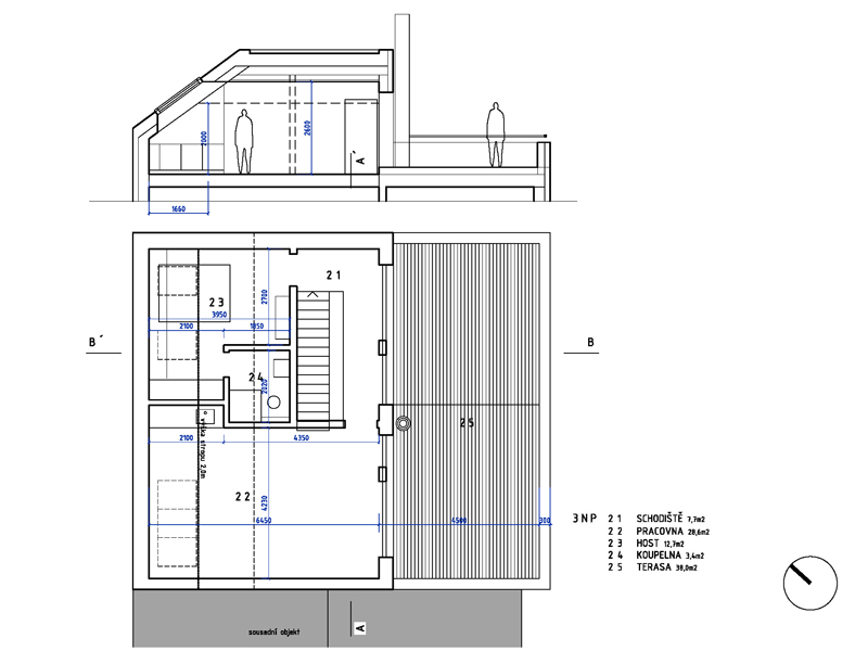
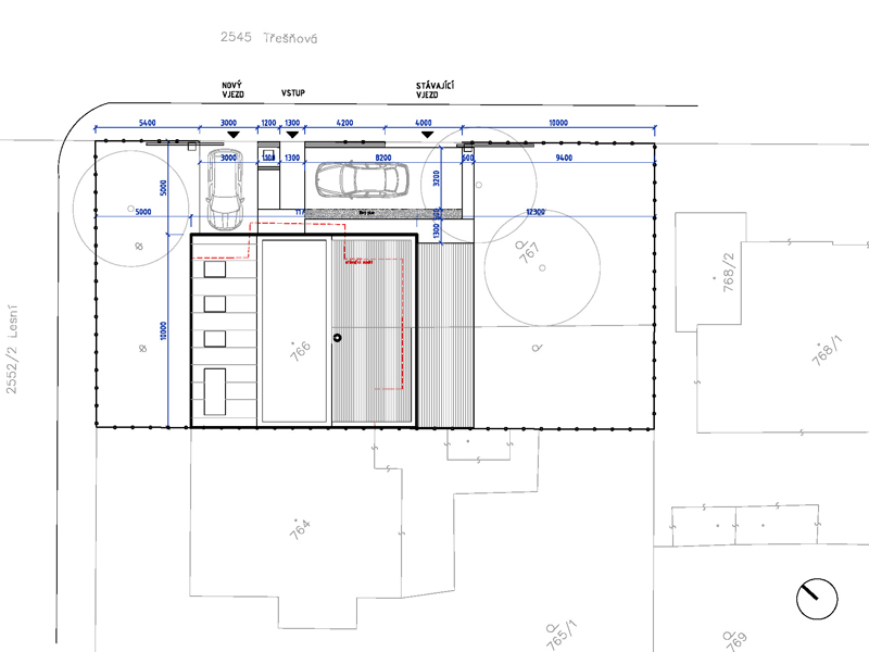
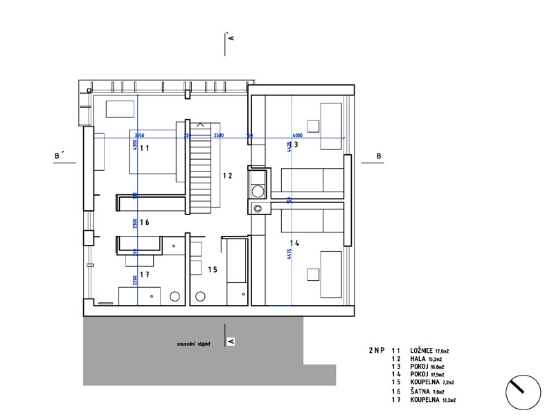
RD Třešňová II přestavba poloviny rodinného dvojdomu 2013 předělání první verze, která neprošla přes úřady