Rekonstrukce mlýna na Křivoklátsku
2013-2014
studie
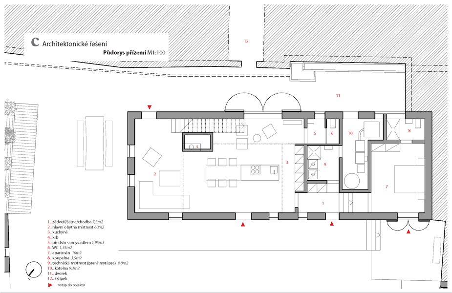
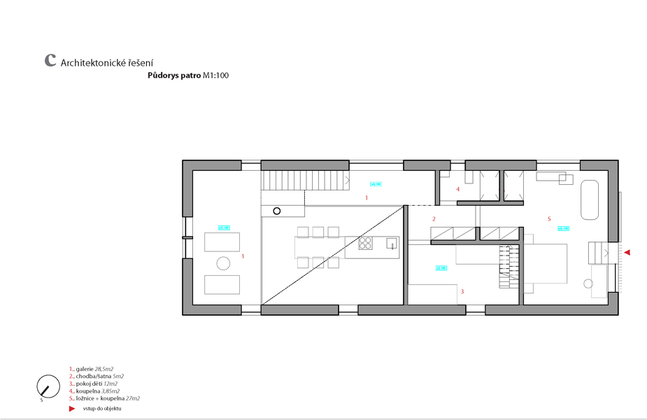
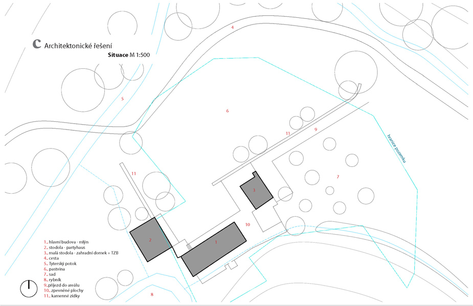
Koncept řešení spočívá zejména v syntéze rekonstrukce exteriéru staveb do původního stavu a nahrazení původního vnitřního členění zcela moderními dispozicemi. Interiér využije vnější obvodové konstrukce pouze jako obálku a nebude se na ně nijak výškově ani půdorysně vázat.
Přilehlá stodola bude využita jako letní partyhouse a ubytování pro hosty. Menší stodola, která uzavírá dvůr bude sloužit jako prostor pro technologie a uskladnění zahradní techniky.
Objekty budou vzájemně svázány pochozími plochami z kamenné dlažby, která před štítem budovy mlýna vytvoří dvorek se zahrádkou.






























