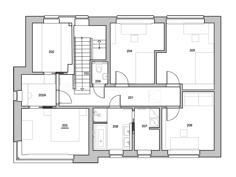
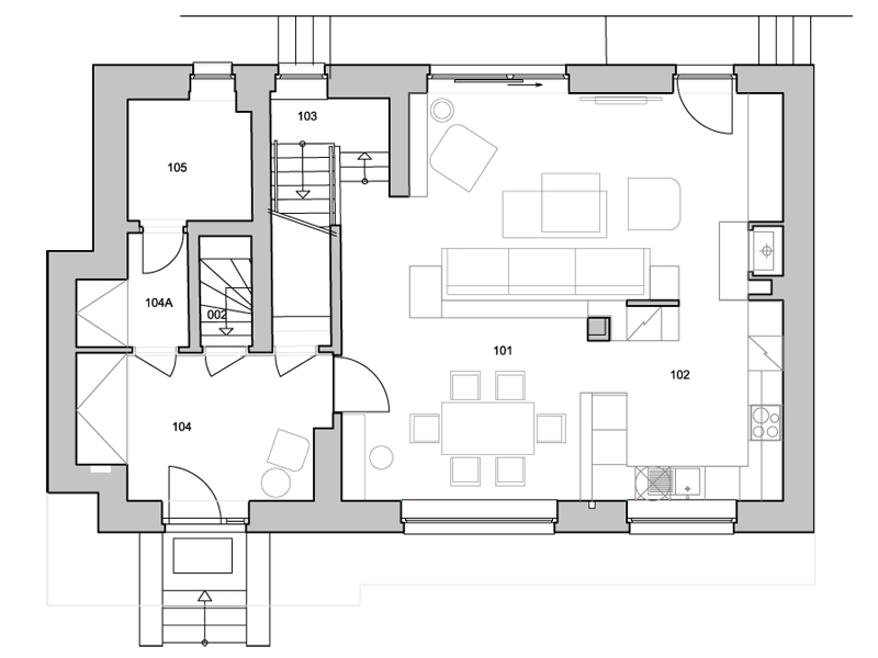
RD Dolní Chabry přestavba rekreačního objektu na RD 2010-2011 projekt, realizace ve spolupráci s Ing. arch. Marek Řehoř