Novinky
Novinky
Odkazy
Práce
Interiérový Design
Hotel Emblem Prague
Restaurace Želivárna
Restaurace La Terrassa
PTC Bulovka
Frey Wille Letiště
Byty Jeséniova
Česká Pojišťovna redesign
Vila Karlovy Vary
Byt Karlovy Vary
Hotel CY by Marriott Plzeň
Doosan Škoda Power
Mondo Ceramica Showroom
Opletalova redesign vstupu
Byt Na Pokraji
Obchod s obuví Terza
Byt Smetanovo nábřeží
Centrum Crystal
Architektura
Jídelna v parku
RD Třebotov
Městský úřad Leopoldov soutěž
RD Kunice
Základní škola Psáry
RD Výsluní
RD Sruby
Rekonstrukce mlýna na Křivoklátsku
Vila Přerov
Byt Zborovská
Byt Červený Hrádek
RD Hájenka
Byt U Milosrdných
Vila v údolí
RD Bručná
RD Třešňová I
RD Třešňová II
AB Trelleborg Sealings
AB Zentiva
RD Hodkovičky
Dům Špindlerův Mlýn
RD Dolní Chabry
RD Lišice
Vila Praha 4
Chata Malá Hraštice
Chalupa Krakov
RD Pardubice
Trelleborg Sealings
Zámeček Romanshorn
RD Jistebník
Bratislava Koliba
Viktoria Žižkov
AB Vítkovice
Ateliér
Impresum
Reference
Info
Kontakt
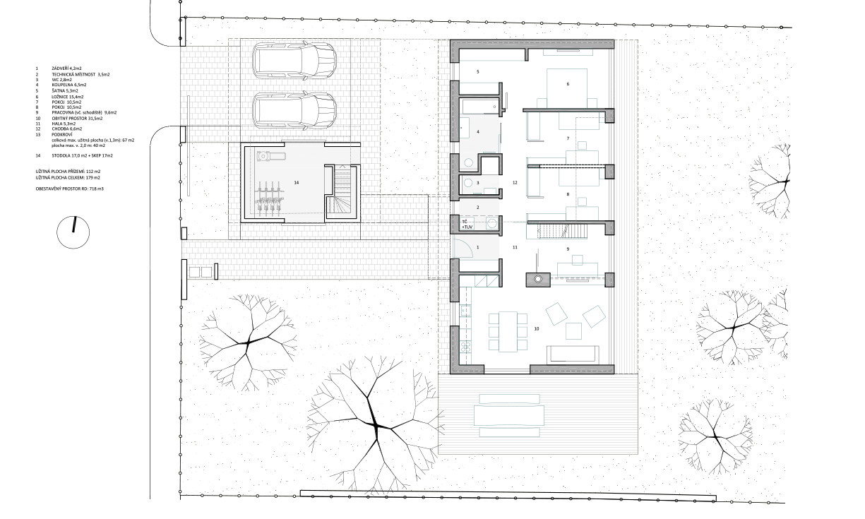
RD Třebotov
2015
projekt rodinného domu v CHKO - studie